Beach Road, Tynemouth
-
Make Enquiry
Make Enquiry
Please complete the form below and a member of staff will be in touch shortly.
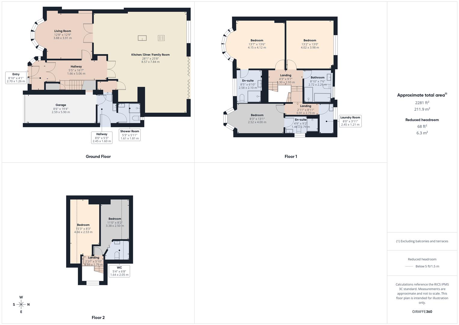
- Floorplan
- View Brochure
- View EPC
- Virtual Tour
Property Summary
Brannen & Partners are delighted to bring to the market this wonderful five bedroom, four bathroom, semi detached family home. Conveniently located close to Tynemouth Village, the award-winning Longsands Beach and highly regarded schools.
Property Features
- FIVE BEDROOMS
- SEMI DETACHED
- EXTENDED & IMPROVED
- SPACIOUS ACCOMMODATION
- FOUR BATHROOMS
- SET OVER THREE FLOORS
- OPEN PLAN LIVING
- UNDERFLOOR HEATING
- PRIME LOCATION
- CLOSE TO SEAFRONT
Virtual Tours
Full Details
Briefly comprising: Entrance porch with double doors to a welcoming hallway leading to ground floor rooms and stairs to the first floor. To the front of the property is a bright and airy living room, boasting a bay window, fireplace and double doors to the kitchen/diner. To the rear is an impressive open plan kitchen/diner/family room with underfloor heating, offering a generous amount of space including bi-folding doors and windows opening out to the private garden. Within the kitchen area are an extensive range of modern fitted wall and base units with a central island providing storage as well as seating. Integrated appliances include two Neff ovens, five ring gas hob, downdraft extractor, dishwasher and space for an American style fridge/freezer.
An inner lobby leads to a separate shower room, storage area and access to the garage.
To the first floor are three double bedrooms, bathroom and laundry room. Two of the bedrooms have the added benefit of en-suites shower rooms and the bathroom comprises a bath with shower attachment, separate walk in shower, hand basin within a vanity unit, W.C. and heated towel rail. All en-suites and family bathroom boast underfloor heating.
To the top floor are two further double bedrooms, one of which is being utilised as a home office and has a separate W.C.
Externally to the rear is a well proportioned private walled garden, laid to lawn with a patio and timber shed. There is side access to the front where there is driveway parking for multiple cars and a garage with a remote electric door.
Conveniently located close to the village centre and a stone's throw away from the award winning Longsands Beach which offers an idyllic location for surfing and other outdoor activities. Tynemouth has excellent links to Newcastle City centre including the Metro station close by. The village has a great choice of shops, restaurants and is host to a weekend market.
Entrance Porch
Hallway
Living Room 3.91m x 3.88m (12'9" x 12'8")
Kitchen/Diner/Family Room 8.57m x 7.84m (28'1" x 25'8")
Shower Room 1.81m x 1.61m (5'11" x 5'3")
Bedroom One 4.15m x 4.12m (13'7" x 13'6")
En-suite 2.58m x 2.10m (8'5" x 6'10")
Bedroom Two 4.02m x 3.98m (13'2" x 13'0")
Bedroom Three 4.00m x 2.52m (13'1" x 8'3")
En-suite 2.79m x 1.46m (9'1" x 4'9")
Bathroom 2.72m x 2.29m (8'11" x 7'6")
Laundry Room 2.45m x 1.21m (8'0" x 3'11")
Bedroom Four 4.56m x 2.53m (14'11" x 8'3")
Bedroom Five 3.38m x 2.50m (11'1" x 8'2")
W.C.
Externally
Externally to the rear is a well proportioned private walled garden, laid to lawn with a patio and timber shed. There is side access to the front where there is driveway parking for multiple cars and a garage with a remote electric door.
Tenure
Freehold
Disclaimer
All rooms have been measured with electronic laser and are approximate measurements only. To comply with the Business Protection from Misleading Marketing Regulations act of 2008, we clarify that none of the services to the above property have been tested by ourselves, and we cannot guarantee that the installations described in the details are in perfect working order. Brannen & Partners for themselves, the vendors or lessors, produce these brochures in good faith and are a guideline only. They do not constitute any part of a contract and are correct to the best of our knowledge at the time of going to press. Pictures may appear distorted due to enlargement and are not to be used to give an accurate reflection of size. All negotiations and payments are subject to contract.


























