Coniston Road, Marden Estate
-
Make Enquiry
Make Enquiry
Please complete the form below and a member of staff will be in touch shortly.
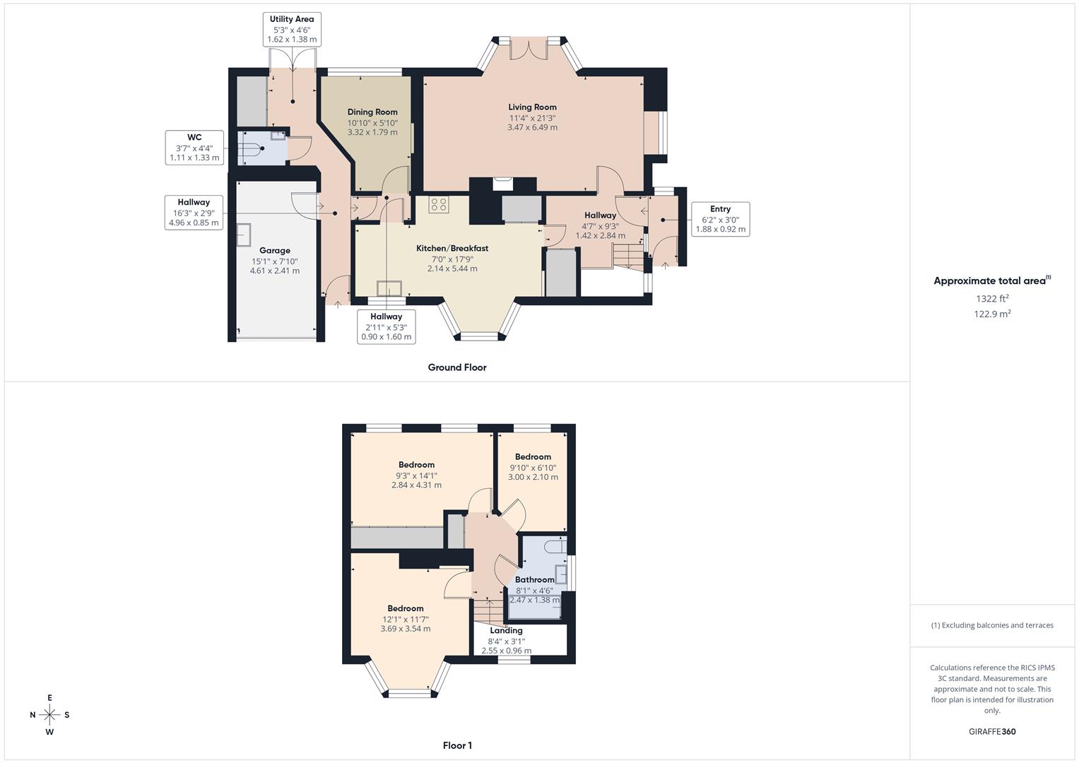
- Floorplan
- View Brochure
- View EPC
- Virtual Tour
Property Summary
We welcome to the market this attractive three bedroom detached property occupying a generous sized plot situated on the Marden Estate. Boasting bright and airy accommodation, modern kitchen/diner, two reception rooms, well maintained private garden, garage and driveway parking.
Property Features
- THREE BEDROOMS
- DETACHED HOME
- BEAUTIFULLY PRESENTED
- TWO RECEPTION ROOMS
- MODERN KITCHEN
- STYLISH BATHROOM
- GENEROUSLY SIZED GARDEN
- GARAGE
- DRIVEWAY PARKING
- POPULAR LOCATION
Virtual Tours
Full Details
Briefly comprising: Entrance vestibule to a welcoming hallway giving access to all ground floor rooms and stairs to the first floor, an understairs cupboard provides storage.
The living room offers a beautiful outlook over the well maintained garden, with the bay window housing French doors opens out to a patio area. This bright and airy room also benefits from an attractive fireplace housing a remote controlled inset gas fire.
To the front of the property is a well equipped kitchen/breakfast room, modern fitted units including an island provide plenty of storage. Integrated appliances include an induction hob, oven, microwave, dishwasher and a designated space for a fridge/freezer.
An inner lobby leads to the dining room which overlooks the rear garden, as well as access to the garage, utility area with plumbing for a washing machine and tumble dryer, separate W.C. and access out to the rear garden.
To the first floor are three bedrooms, two of which are good sized doubles and one boasts fitted sliding wardrobes. The stylish bathroom comprises a bath with shower over, hand basin within a vanity unit, W.C. and heated towel rail.
Externally to the rear is a generous sized, well maintained private garden. Laid to lawn with patio areas, mature planting, timber shed and a beautiful summer house. To the front is a garden, driveway parking and garage.
Set between the two very popular towns of Whitley Bay and Tynemouth, this property is well located for local shops, transport links as well as road links to the City Centre and beyond. Cullercoats has highly regarded schools nearby as well as a good selection of local shops and amenities.
Entrance Vestibule
Hallway
Living Room 6.49m x 3.47m (21'3" x 11'4")
Kitchen/Breakfast Room 5.44m x 2.14m (17'10" x 7'0")
Dining Room 3.32m x 1.79m (10'10" x 5'10")
Utility Area
W.C.
Bedroom One 4.31m x 2.84m (14'1" x 9'3")
Bedroom Two 3.69m x 3.54m (12'1" x 11'7")
Bedroom Three 3.00m x 2.10m (9'10" x 6'10")
Bathroom 2.47m x 1.38m (8'1" x 4'6")
Externally
Externally to the rear is a generous sized, well maintained private garden. Laid to lawn with patio areas, mature planting, timber shed and a beautiful summer house. To the front is a garden, driveway parking and garage.
Tenure
Freehold
Disclaimer
All rooms have been measured with electronic laser and are approximate measurements only. To comply with the Business Protection from Misleading Marketing Regulations act of 2008, we clarify that none of the services to the above property have been tested by ourselves, and we cannot guarantee that the installations described in the details are in perfect working order. Brannen & Partners for themselves, the vendors or lessors, produce these brochures in good faith and are a guideline only. They do not constitute any part of a contract and are correct to the best of our knowledge at the time of going to press. Pictures may appear distorted due to enlargement and are not to be used to give an accurate reflection of size. All negotiations and payments are subject to contract.




















